1689个喜欢
| 小区名称 | 富力.院士廷 | 案例户型 | 三居室 | 房屋面积 | 140m² |
| 装修风格 | 现代 | 装修价格 | 0.00万 | 设计师 | 卢兴宇 |

慢品人间烟火色
闲观人间岁月长
项目地址/富力院士廷
设计风格/现代轻奢 140㎡
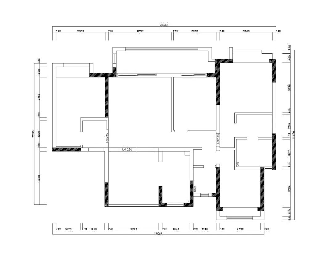
设计平面图

原始结构图
客厅

岩板加木饰面和线条组合成的温馨客厅空间,扑面而至的是一股温暖的气息。繁杂的工作之后,打开家门,让疲惫的身躯得到松弛的释放。



餐厅

餐厅桌椅摆放规整且井然有序,美味需要共享,合理构造出多人用餐的区域。让你在简单舒适的空间里,尽享美食的乐趣。


主卧


次卧


书房


阳台

通透的阳台空间,呼唤出内在最初的本心。洗去一身风尘疲劳,闲暇之时在阳台俯瞰人间烟火自然而然。
—— 知精准报价 避装修深坑 ——