2569个喜欢
| 小区名称 | 吾悦广场 | 案例户型 | 三居室 | 房屋面积 | 120m² |
| 装修风格 | 简约 | 装修价格 | 0.00万 | 设计师 | 王汉宝 |
剪一段时光,让人陶醉,
和家人在这里的每一个片段都充满温馨。
我们最想拥有的生活,
大概就是白天与黑夜的喧嚣沉浸下去的时候,
有一份独属于自己的宁静。

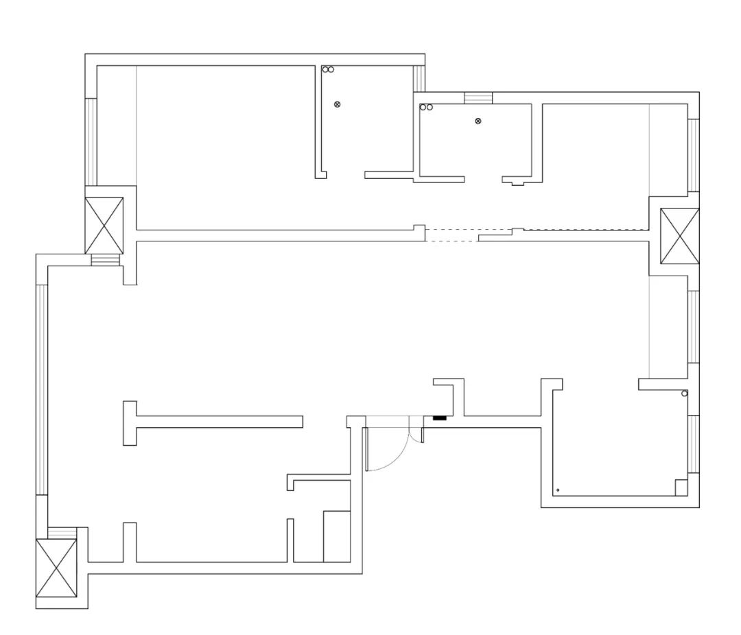
设计平面图

▲原始结构图

▲平面设计图
Design concept/设计亮点
拓宽了卫生间面积,设计了干湿分离。
餐厅区域设计了玻璃酒柜,显得更加实用和美观。
厨房台面L型的设计布局,空间运用合理。
阳台设置休闲区和晾衣区,提高了居住实用性。
客 厅
LIVING ROOM


软装搭配选择与整体相同的颜色,达成空间的协调统一。

整体空间形成了视觉上的冲击,添加一道靓丽的色彩。客厅阳台一体,为整个空间带来了充分的阳光,使得室内空间更加光彩明亮。

餐 厅
DINING ROOM


生活是反复播放日常串联起的记忆长卷。将客厅与餐厅串联,设计为开放式的布局,打造出让人一目了然的流动空间,提高了互动性。

客厅一侧打造了玻璃酒柜,既显得美观又能凸显出客厅大气简约。黑色与白色的搭配呈现出大气而又不失沉稳。

餐厅区域沿用与客厅相同的基调,开放式餐桌合理利用空间,同时也满足多人用餐的需求。为了更好的打开空间视觉,弱化了玄关空间的存在感,将玄关收纳功能与邻近的空间功能与结构进行整合。

餐桌一侧打造了柜式收纳场所,提高了家中生活用品的收纳空间。米色系的柜子和深色的收纳格更加的轻奢时尚,构成整洁、大方、有品位的空间。
厨房
KITCHEN


厨房连接餐厅,朋友来时,大家一起在这里做一做饭,喝喝酒。闲暇时做个简餐为生活增添些许惬意,宁静中求得舒适。
主 卧
MASTER BEDROOM
主卧通过对材质比例的运用增添空间格调,吊顶的照明灯饰与整体的氛围十分搭配。卧室采光非常好,没有用复杂的家具扰乱整个格局和打破整体的设计。米色大衣柜的设计提高了衣物收纳,增加了实用性。



自然采光与室内光氛围营造,结合空间所对应的功能,我们将光线与未来的生活场景相结合,营造出不同的空间意境。桌椅的放置恰到好处。
次 卧
SECOND BEDROOM


打造了收纳的柜子和工作的桌子,提高了整个空间的实用性。灰白色的木质衣柜和桌子与蓝色系的窗帘形成撞色,凸显卧室的温馨。

次卧室中的色调与公共空间相呼应,采用了白色,撞色窗帘点缀整个空间,让嘈杂的生活瞬间安静下来,带人走入静谧舒适的休憩氛围。
—— 知精准报价 避装修深坑 ——